184 GARDENIA PARADE, Greystanes
UNDER OFFER
Wonderful opportunity for Developers, Investors and Families
In a quiet streets, with a high set position at the front, and a backyard that overlooks reserve and recreational walkways, this location is fantastic !
Enormous potential to either renovate, knockdown and rebuild
First time offered
Priced to Sell, at LAND VALUE
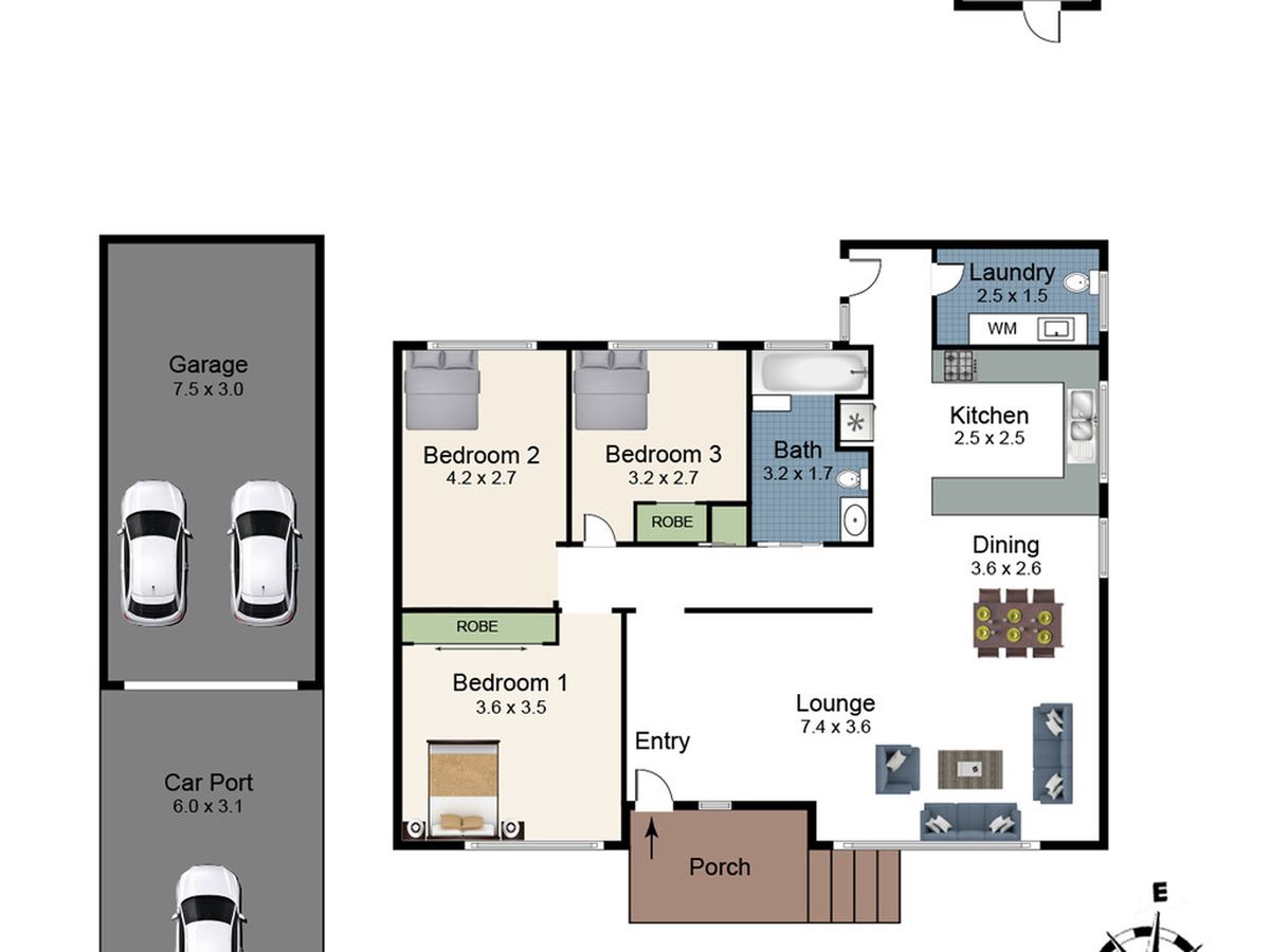
ATTRIBUTES INCLUDE
- Entry into combined Lounge/Dining
- 3 bedrooms, one with built ins
- Functional kitchen with gas cooking
- Internal laundry with extra toilet
- Single garage plus carport
- Great backyard
- Ample off street parking
- Convenient location, close to schools and buses
A fantastic opportunity to acquire a great Property in a tree leaf location.
Inspection highly recommended
Mortgage Calculator
$3,078
Estimated monthly repayments based on advertised price of $750000.
Property Price
Deposit
Loan Amount
Interest Rate (p.a)
Loan Terms




