7 Oak Street, Greystanes
WE HAVE MANY BUYERS FOR GREYSTANES
In a peaceful setting, this home occupies a commanding position in a tightly held,blue ribbon location. Perfect for the astute investor or a family wanting to live in a premier street in Greystanes.
Abundance of options: Paint and move in, Knock down and rebuild, Continue to lease as investment...
Some attributes include
• Safe and quiet, cul-de-sac location;
• A clear, flat, rectangular block of land on the high side of the street;
• 556.4 sqm with 27.43 m frontage;
• Short walks to Greystanes shopping center, bus stops, schools, and other amenities;
• Quick access to M4 and Cumberland Highway (A28);
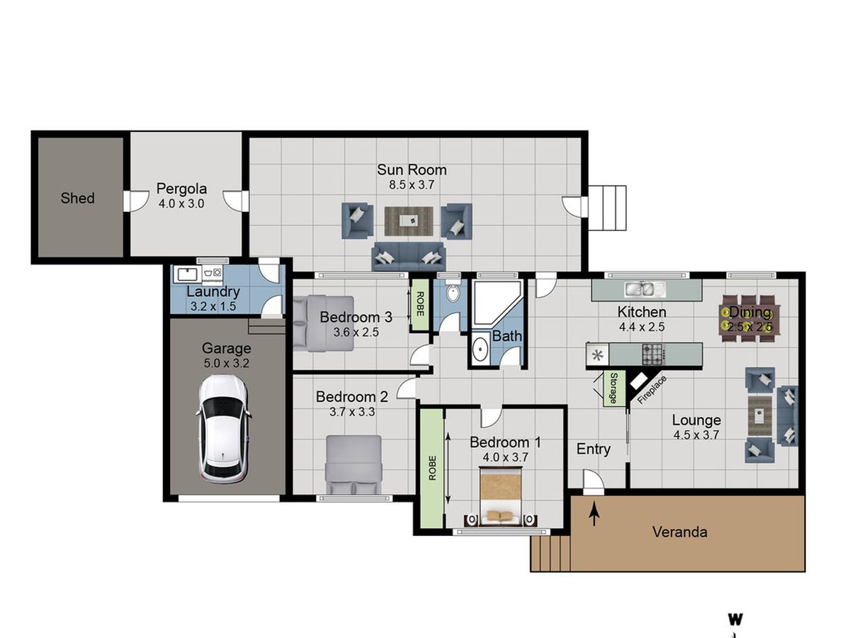
• 3-bedroom brick house with separated bath and toilet; built-in wardrobes in two bedrooms; high ceiling; spacious lounge and sunroom;
• Close to Ringrose Public School and Our Lady Queen of Peace catholic school;
Ideally located in the heart of Greystanes, this home is sure to attract investors, builders and home owners alike.
Move in or lease out, or reap the potential growth and possibilities of development or extensions.
Make your move!
Mortgage Calculator
$3,078
Estimated monthly repayments based on advertised price of $845000.
Property Price
Deposit
Loan Amount
Interest Rate (p.a)
Loan Terms






